关于黄山市杭华化工科技有限公司年产1万吨环保型特种阻燃电缆材料项目修建性详细规划的公示
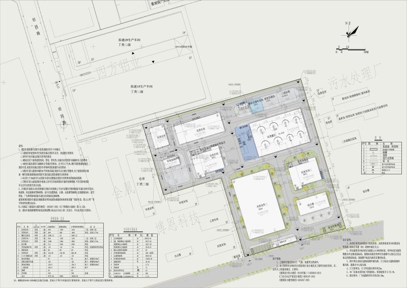
黄山市杭华化工科技有限公司年产1万吨环保型特种阻燃电缆材料项目位于歙县经济技术开发区城西园区,东至污水处理厂,南至纬一路,西至博恩科技有限公司,北至四方铝业有限公司。该项目规划方案已于2025年9月2日通过专家评审,设计单位根据评审意见进行了修改完善。
该项目用地性质为工业用地,总用地面积为22045.64㎡,总建筑面积为9059㎡(计容建筑面积16238.62㎡),容积率为0.74,建筑密度39.63%,绿地率为15%。本次规划拟新建丙类仓库,建筑面积330㎡。
根据黄山市杭华化工科技有限公司年产1万吨环保型特种阻燃电缆材料项目修建性详细规划评审专家意见,按照有关规定,现将该项目规划设计方案予以公示(见附图),如有疑问或意见可向我单位咨询、反映。
安徽歙县经济开发区管理委员会
2025年9月28日
公示时间:2025.9.28~2025.10.13(七个工作日)
联系电话:0559~6517848 联系人:曹文莉
公示网址:http://kfq.ahshx.gov.cn/index.html
公示地点:县经济开发区管理委员会公示栏、项目现场


皖公网安备 34102102000111号